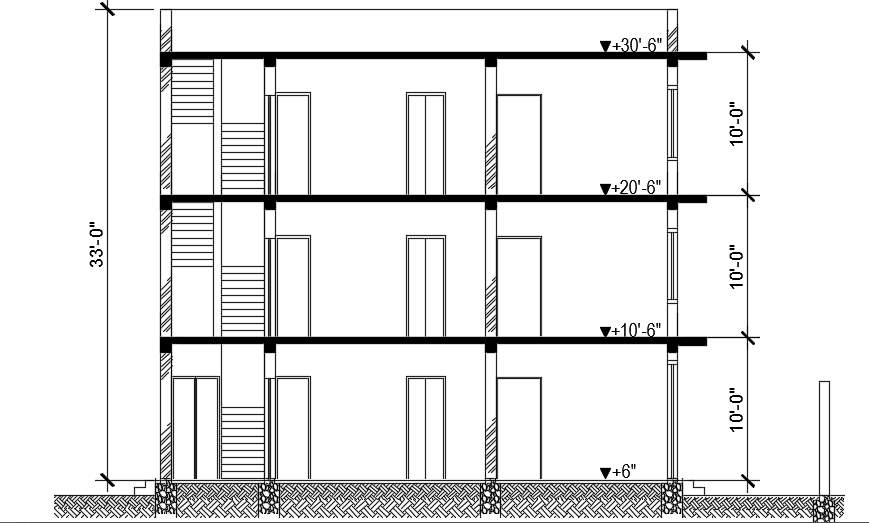
The front cut section view of the 41x36 feet three story house building is given
Description
The front cut section view of the 41x36 feet three story house building is given in this file. This is G+ 2 house building. On this ground floor, the living room, kitchen, dining area, master bedroom, kid’s bedroom, and three common bathrooms are available. On this first floor, the living room, kitchen, dining area, master bedroom, kid’s bedroom, and two common bathrooms are available. On this third floor, the living room, kitchen, dining area, master bedroom, kid’s bedroom, and two common bathrooms are available. For more details download the AutoCAD model from our cadbull website.
Uploaded by:

