Gate typical elevation cad drawing is given in this file
Description
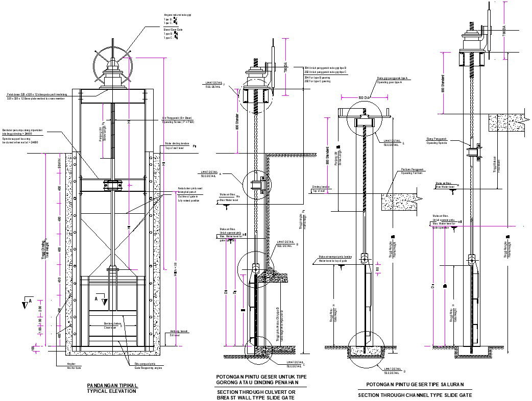
Gate typical elevation cad drawing is given in this file. Anchor, gate steppening angles, sill level, clear span, top of wall level, base plate, and other details are mentioned. Breast wall type slide gate, and channel type slide gate section drawings are given. For more details download the AutoCAD drawing file from our website.
Uploaded by:

