10x15m house plan layout cad drawing is given in this file
Description
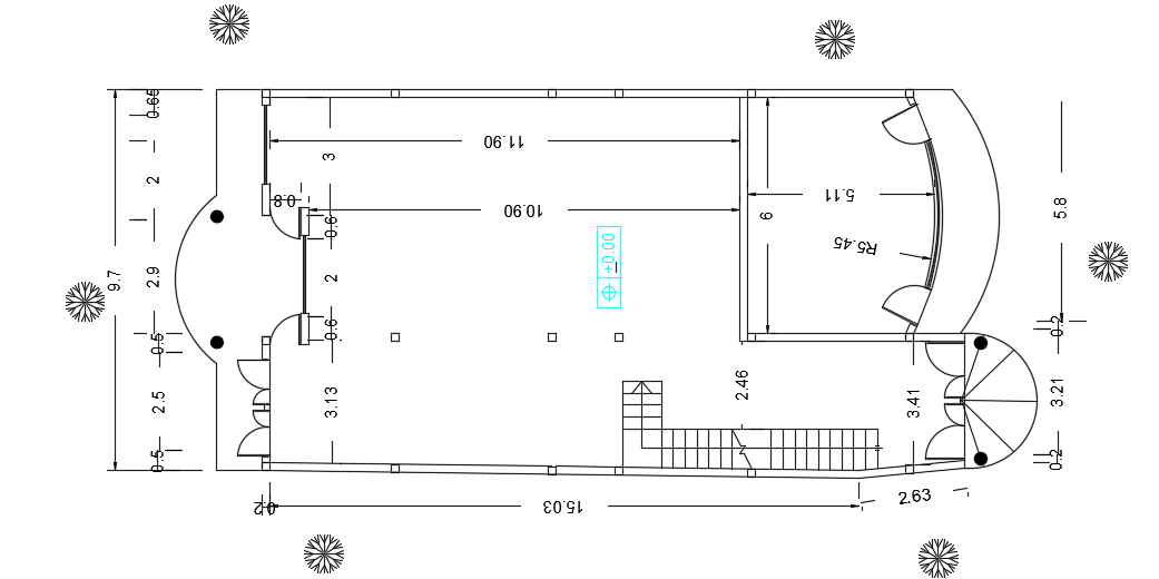
10x15m house plan layout cad drawing is given in this file. This is three story house building. The length and breadth of the house plan are 9.7m and 15.03m respectively. For more details download the AutoCAD drawing model from our website. Thank you for downloading the AutoCAD file from our cadbull website.
Uploaded by:

