9x12m 3-Story First Floor Bungalow House Plan with Furniture
Description
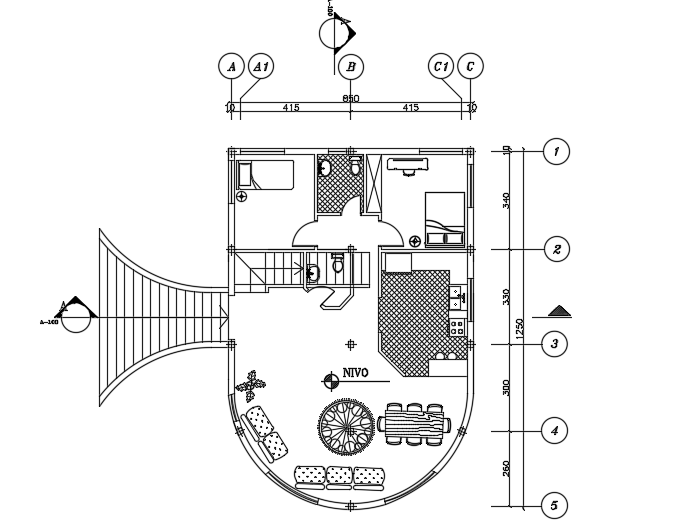
The furniture’s layout of the 9x12m architecture 3 story first floor bungalow house is given in this file. This is G+ 2 residential building. On this first floor, the living room, kitchen, dining area, master bedroom, kid’s bedroom, and two common bathrooms are available. For more details download the AutoCAD drawing model from our website. Thank you for downloading the AutoCAD file from our cadbull website.
Uploaded by:

