13x12m second floor house plan 2d AutoCAD drawing is given in this file
Description
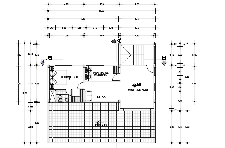
13x12m second floor house plan 2d AutoCAD drawing is given in this file. This is three story house building with local shop. On this second floor, living room, master bedroom with the attached toilet, gym, and open terrace is available. For more details download the AutoCAD drawing model from our website. Thank you for downloading the AutoCAD file from our cadbull website.
Uploaded by:

