8x10m house plan 3 story foundations cum column layout 2d AutoCAD DWG drawing
Description
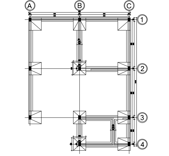
8x10m house plan 3 story foundations cum column layout 2d AutoCAD DWG drawing is given in this file. The distance between each column and foundations are given. For more details download the AutoCAD drawing model from our website. Thank you for downloading the AutoCAD file from our cadbull website.
Uploaded by:

