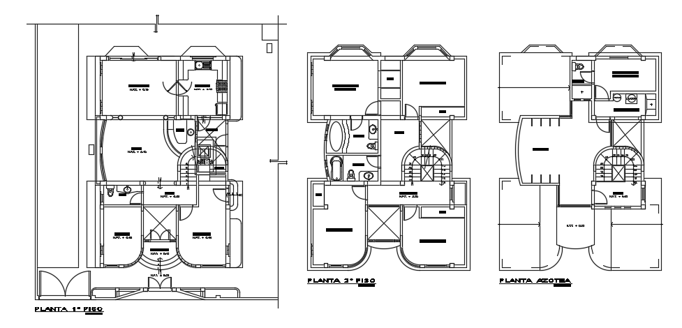
10x13m wonderful three story bungalow house plan is given in this file
Description
10x13m wonderful three story bungalow house plan is given in this file. This is a 5bhk house plan including maid room. On this ground floor, the living room, kitchen, dining area, bar, study room, and common bathroom is available. On this first floor, the master bedroom with the attached toilet, kid’s bedroom, two guest bedroom, and common bathroom is available. On this second floor, lavanderia, maid room with the attached toilet, hall, and open space is available. For more details download the AutoCAD drawing model from our website. Thank you for downloading the AutoCAD file from our cadbull website.
Uploaded by:

