7x7m architecture house plan cad drawing is given in this file
Description
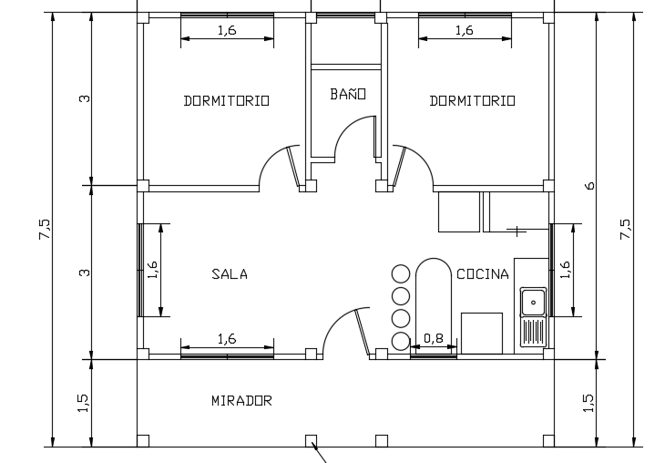
7x7m architecture house plan cad drawing is given in this file. This is single story house building. On this floor plan, the living room, kitchen, master bedroom, kid’s bedroom, and common bathroom is available. For more details download the AutoCAD drawing model from our website. Thank you for downloading the AutoCAD file from our cadbull website.
Uploaded by:

