10x11m architecture ground and first floor house plan cad drawing
Description
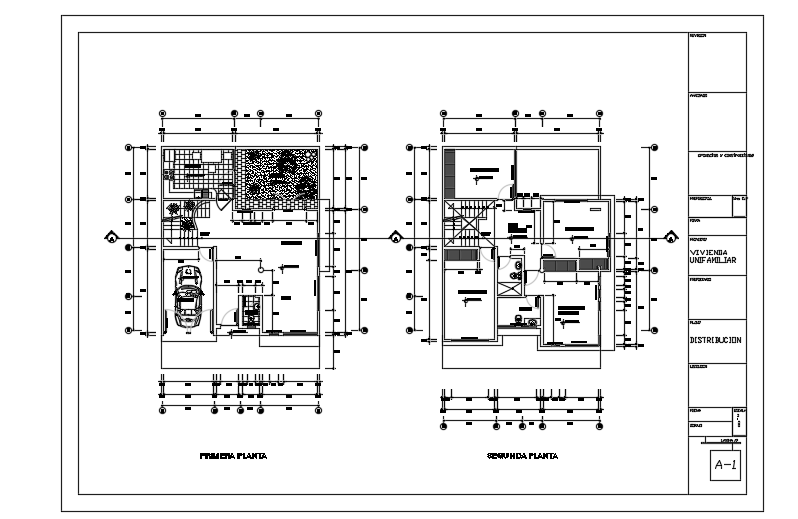
10x11m architecture ground and first floor house plan cad drawing is given in this file. This is 3 story residential building. On this ground floor, the living room, kitchen, dining area, car parking, and garden is available. On this first floor, the living room, master bedroom with the attached toilet, two kid’s bedroom, guest room, and common bathroom is available. For more details download the AutoCAD drawing model from our website. Thank you for downloading the AutoCAD file from our cadbull website.
Uploaded by:

