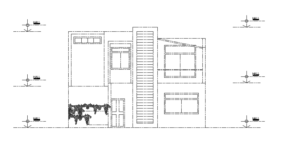
The right side elevation view of the 45x10m house building cad drawing
Description
The right side elevation view of the 45x10m house building cad drawing is given in this file. This is two story house building. On this ground floor, the living room, kitchen, dining area, outside kitchen, swimming pool, bar, garden, and common bathroom is available. On this first floor, the master bedroom with the attached toilet, kid’s bedroom, guest bedroom with the attached toilet, and living room is available. For more details download the AutoCAD drawing model from our website. Thank you for downloading the AutoCAD file from our cadbull website.
Uploaded by:

