18x9m architecture 3bhk house plan Autocad drawing is given in this file
Description
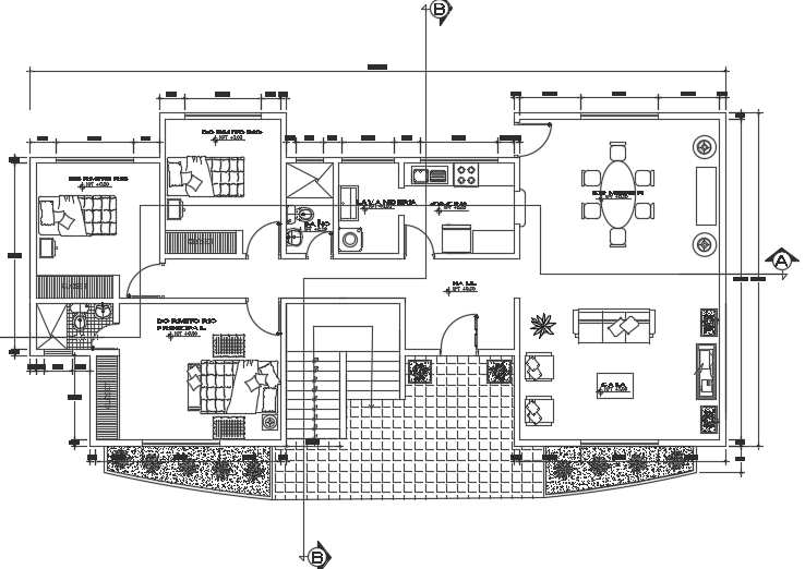
18x9m architecture 3bhk house plan Autocad drawing is given in this file. This is two story house building. On this ground floor, the living room, dining area, master bedroom with the attached toilet, kid’s bedroom, guest room, kitchen, and common bathroom is available. For more details download the AutoCAD drawing model from our website. Thank you for downloading the AutoCAD file from our cadbull website.
Uploaded by:

