10x12m luxury villa plan AutoCAD 2d drawing is given in this file
Description
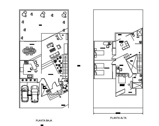
10x12m luxury villa plan AutoCAD 2d drawing is given in this file. This is two story villa building. On this ground floor, the car parking, patio service, kitchens, common bathroom, living room, bar, and dining area is available. On this first floor, the living room, master bedroom with the attached toilet, kid’s bedroom, guest room, balcony, and common bathroom is available. For more details download the AutoCAD drawing model from our website. Thank you for downloading the AutoCAD file from our cadbull website.
Uploaded by:

