8x20m villa two story ground floor house plan cad drawing
Description
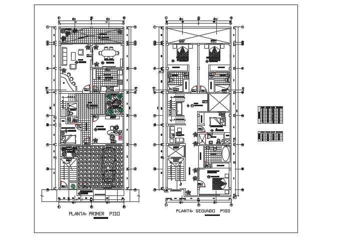
8x20m villa two story ground floor house plan cad drawing is given in this file. This is g+ 1 villa building. On this ground floor, the car parking, living room, kitchen, dining area, master bedroom, open space, and common bathroom is available. On this second floor, the master bedroom with the attached toilet, kid’s bedroom with the attached toilet, two guest bedroom with the attached toilet, and living room is available. For more details download the AutoCAD drawing model from our website. Thank you for downloading the AutoCAD file from our cadbull website.
Uploaded by:

