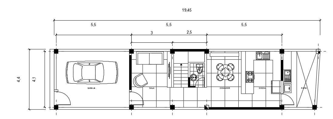
18x5m two story family ground floor villa plan AutoCAD drawing
Description
18x5m two story family ground floor villa plan AutoCAD drawing is given in this file. This is two story residential house building with a 2bhk. On this ground floor, the car parking, living room, kitchen, dining area, patio, and common bathroom is available. For more details download the AutoCAD drawing model from our cadbull website. Thank you for downloading the AutoCAD files from our cadbull website.
Uploaded by:

