23x16m architecture triple duplex ground floor house plan Auto CAD drawing
Description
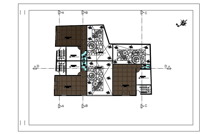
23x16m architecture triple duplex ground floor house plan Auto CAD drawing is given in this file. This is three story duplex house building. On this floor, three houses are available with a 3bhk. On this ground floor, parking is available. For more details download the AutoCAD drawing model from our cadbull website. Thank you for downloading the AutoCAD files from our cadbull website.
Uploaded by:

