The back side section view of the 7x9m home building cad 2d drawing
Description
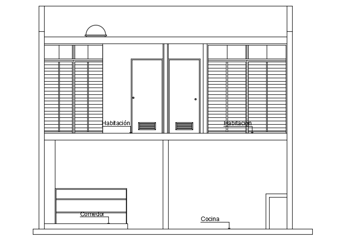
The back side section view of the 7x9m home building cad 2d drawing is given in this file. This is two story town house building. On this ground floor, the living room, hall, kitchen, dining area, and common bathroom is available. On this first floor, the master bedroom with the attached toilet, kid’s bedroom, guest bedroom, and common bathroom is available. For more details download the AutoCAD drawing model from our cadbull website. Thank you for downloading the AutoCAD files from our cadbull website.
Uploaded by:

