16x9m architecture two story house ground floor plan cad drawing
Description
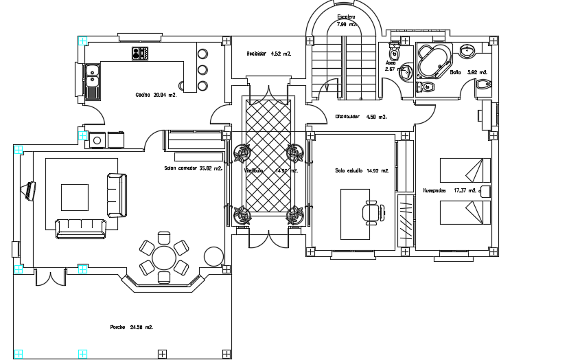
16x9m architecture two story house ground floor plan cad drawing is given in this file. This is G+ 1 house building. On this ground floor, study room, the living room, kitchen, dining area, porch, master bedroom with the attached toilet, and common bathroom is available. For more details download the AutoCAD drawing model from our cadbull website. Thank you for downloading the AutoCAD files from our cadbull website.
Uploaded by:

