15x13m ground floor house plan AutoCAD drawing is given in this file
Description
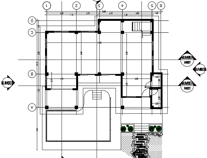
15x13m ground floor house plan AutoCAD drawing is given in this file. This is two story villa building. On this ground floor plan, the living room, kitchen, dining area, master bedroom with the attached toilet, and common bathroom is available. For more details download the AutoCAD drawing file from our cadbull website. Thank you for downloading the AutoCAD drawing model from our website.
Uploaded by:
