20x8m house plan first floor pillar layout cad drawing
Description
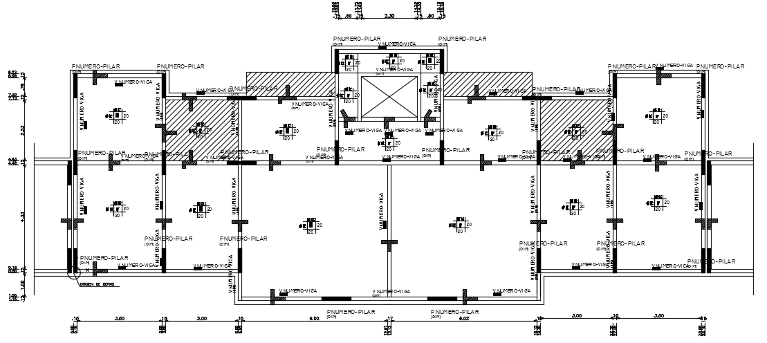
20x8m house plan first floor pillar layout cad drawing is given in this file. This drawing is structural layout. For more details download the AutoCAD drawing file from our cadbull website. Thank you for downloading the AutoCAD drawing model from our website.
Uploaded by:
