The beam layout of the 20x8m house plan cad drawing
Description
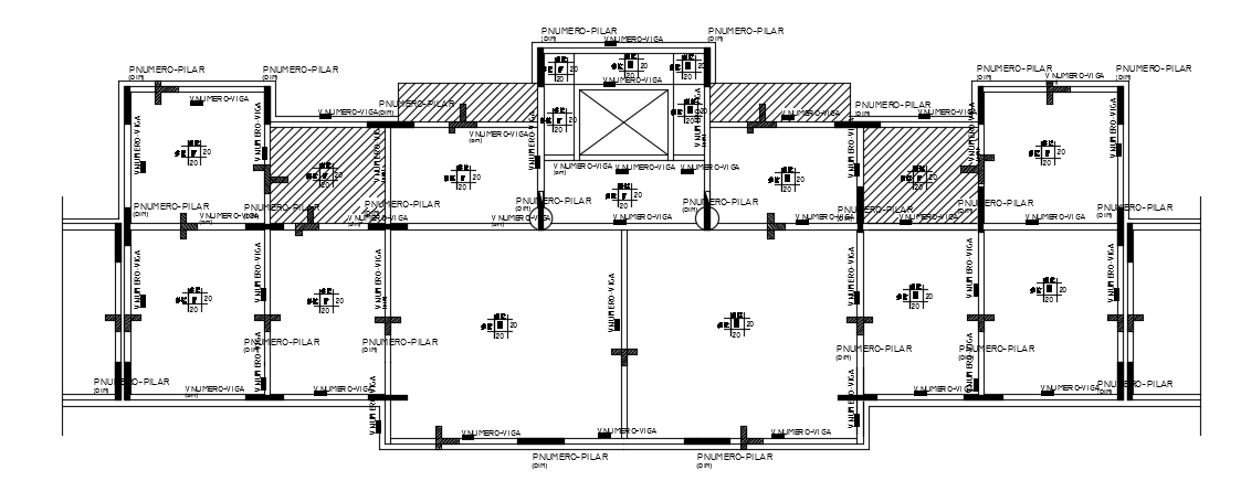
The beam layout of the 20x8m house plan cad drawing is given in this file. This drawing is structural layout. For more details download the AutoCAD drawing file from our cadbull website. Thank you for downloading the AutoCAD drawing model from our website.
Uploaded by:
