7x7m single story 1bhk house plan cad drawing is given in this file
Description
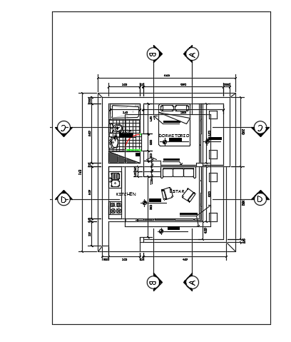
7x7m single story 1bhk house plan cad drawing is given in this file. The total height of house building is 3.3m. On this floor plan, the living room, kitchen, master bedroom, and the attached toilet is available. For more detail download the AutoCAD 2d drawing file from our website. Thank you for downloading the AutoCAD drawing file from our cadbull website.
Uploaded by:

