14x6m architecture two story ground floor house plan cad drawing
Description
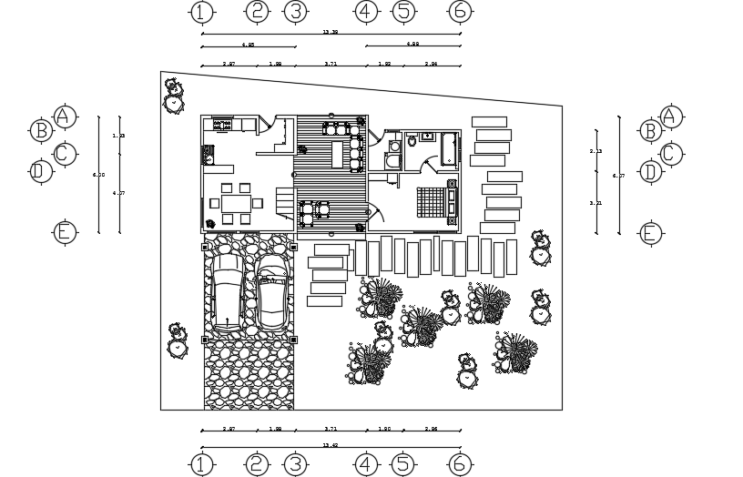
14x6m architecture two story ground floor house plan cad drawing is given in this file. On this ground floor plan, the car parking, garden, pathway, kitchen, dining area, living room, master bedroom with the attached toilet, and common bathroom is available. For more detail download the AutoCAD 2d drawing file from our website. Thank you for downloading the AutoCAD drawing file from our cadbull website.
Uploaded by:

