14x6m architecture two story first floor house plan cad drawing is given
Description
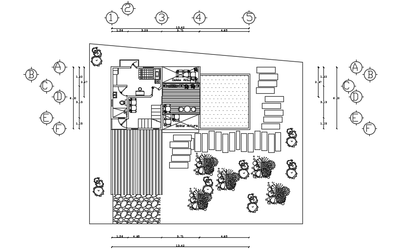
14x6m architecture two story first floor house plan cad drawing is given in this file. On this first floor, the master bedroom with the attached toilet is available. For more detail download the AutoCAD 2d drawing file from our website. Thank you for downloading the AutoCAD drawing file from our cadbull website.
Uploaded by:
