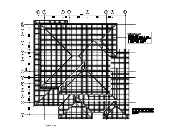
A roof layout of the 20x22m two story house plan drawing is given
Description
A roof layout of the 20x22m two story house plan drawing is given in this cad file. This is G+ 1 house building. For more detail download the AutoCAD 2d drawing file from our website. Thank you for downloading the AutoCAD drawing file from our cadbull website.
Uploaded by:

