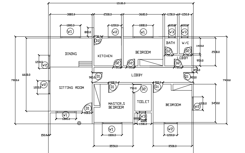
The door, window, and ventilation location of the 13x8m home design cad drawing
Description
The door, window, and ventilation location of the 13x8m home design cad drawing is given in this file. This is a single story house building with 3bhk. On this floor plan, sitting room, dining area, kitchen, master bedroom with the attached toilet, kid’s bedroom, guest bedroom, lobby, and common bathroom is available. For more detail download the AutoCAD 2d drawing file from our website. Thank you for downloading the AutoCAD drawing file from our cadbull website.
File Type:
DWG
File Size:
176 KB
Category::
Dwg Cad Blocks
Sub Category::
Windows And Doors Dwg Blocks
type:
Gold
Uploaded by:

