19x15m first floor house design is given in this file
Description
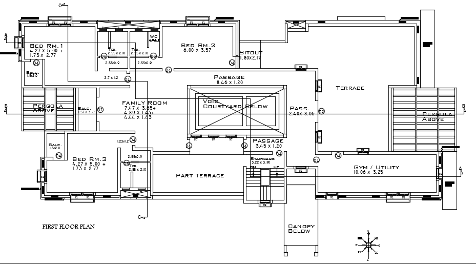
19x15m first floor house design is given in this file. This is two story house building. On this first floor plan, the family room, master bedroom with the attached toilet, guest room with the attached toilet, kid’s room with the attached toilet, passage, terrace, and gym is available. For more detail download the AutoCAD 2d drawing file from our website. Thank you for downloading the AutoCAD drawing file from our cadbull website.
Uploaded by:

