25x20m house building door and window plans are given
Description
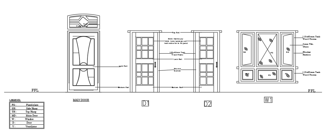
25x20m house building door and window plans are given. For more details download the AutoCAD drawing model is given in this file. Thank you for downloading the AutoCAD drawing model from our cadbull website.
Uploaded by:

