A layout of the 8x11m two story first floor plan cad 2d drawing
Description
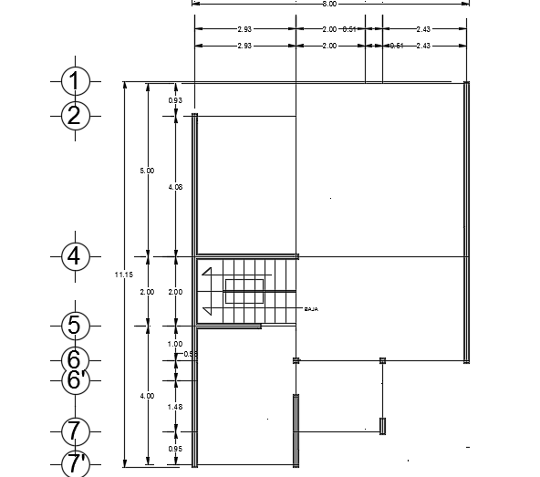
A layout of the 8x11m two story first floor plan cad 2d drawing is given in this file. This is G+ 1 house building. On this first floor, the living room, master bedroom, and common bathroom is available. For more detail download the AutoCAD 2d drawing file from our website. Thank you for downloading the AutoCAD drawing file from our cadbull website.
Uploaded by:

