7x12m architecture one story house plan cad drawing is given in this file
Description
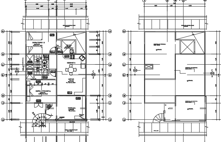
7x12m architecture one story house plan cad drawing is given in this file. This is a 2bhk house plan. On this floor plan, the living room, kitchen, master bedroom with the attached toilet, dining area, master bedroom, patio, open terrace, and common bathroom is available. For more details download the AutoCAD drawing model is given in this file. Thank you for downloading the AutoCAD drawing model from our cadbull website.
Uploaded by:

