20x12m Double Story House Plan CAD Model for Architects and Designers
Description
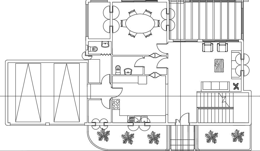
This 20x12m double-story house CAD model offers accurate architectural layouts, including rooms, walls, doors, windows, and staircases. It is ready to use and fully editable, making it ideal for architects, interior designers, and students. The structured layers allow easy modifications for modern residential projects, saving time and improving precision in planning and documentation. This CAD file is a valuable resource for both professional design work and educational purposes.
Uploaded by:

