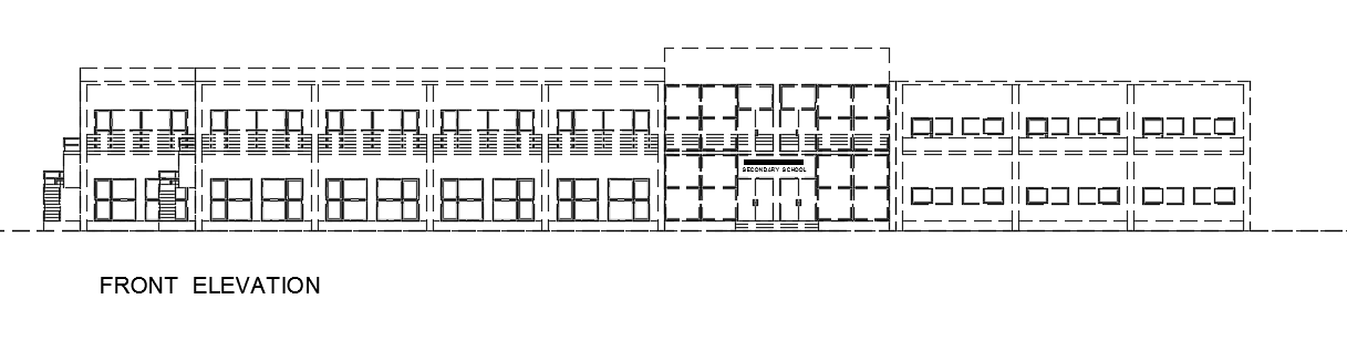
The front elevation view of the 77x65m school building 2d AutoCAD DWG drawing
Description
The front elevation view of the 77x65m school building 2d AutoCAD DWG drawing file is given. This is two story school building. On this ground floor school plan, the main entrance lobby, administration, class rooms, multipurpose hall, cafeteria & kitchen, Basketball & volleyball, car, and bus parking is available. On this first floor school plan, the main library, library, class rooms, staff toilet, boys toilet, girls toilet, laboratories, healthcare unit, and gymnastics & acrobats is available. For more details download the AutoCAD drawing model from our cadbull. Thank you for downloading the AutoCAD files from our cadbull website.
Uploaded by:
