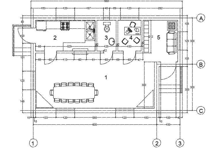
10x6m architecture simple office plan cad drawing is given in this file
Description
10x6m architecture simple office plan cad drawing is given in this file. This is single story building. On this floor plan, the conference room, office room, kitchen, and common bathroom is available. For more details download the AutoCAD drawing model from our cadbull. Thank you for downloading the AutoCAD files from our cadbull website.
Uploaded by:

