First Floor Layout Plan 13x10m Residential House in AutoCAD DWG file
Description
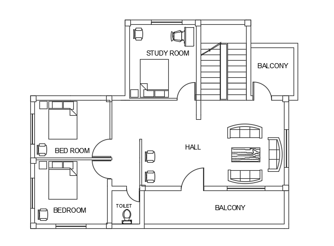
This DWG drawing shows a first-floor layout plan for a 13x10m two-storey residential house, designed to deliver clarity in architectural planning. The floor plan includes a master bedroom, guest bedroom, study room, common bathroom, and two balconies, providing balanced space allocation and circulation. Each room is positioned to maximize natural light and ventilation, while ensuring practical connections among the living areas. This layout is suited for architects, design students, and home planners seeking realistic residential home plan references.
Uploaded by:

