13x10m First Floor Residential House Plan in AutoCAD DWG Format
Description
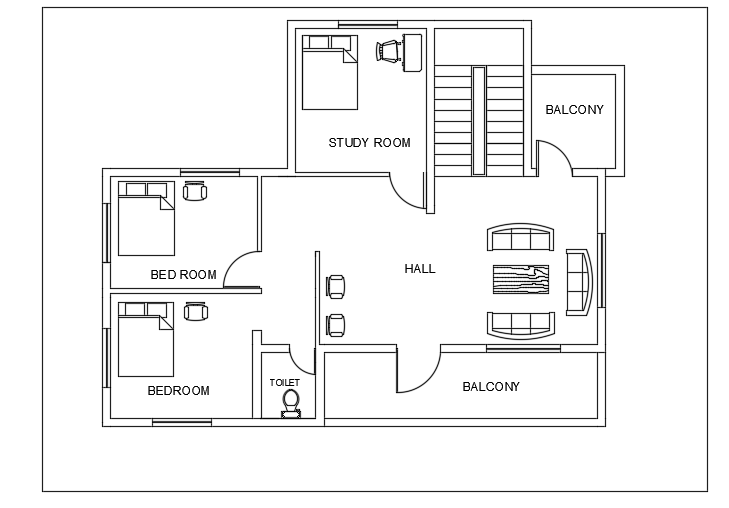
This AutoCAD DWG file presents a meticulously designed first-floor layout of a 13x10m residential house. The plan includes a spacious living room, study room, master bedroom, guest bedroom, common bathroom, and two balconies, providing a comprehensive view of the upper floor's interior. Ideal for architects, interior designers, and students, this drawing serves as a valuable reference for planning and visualizing residential spaces in a two-story building.
Uploaded by:

