Furniture Layout Plan for 13x10m First Floor House DWG file
Description
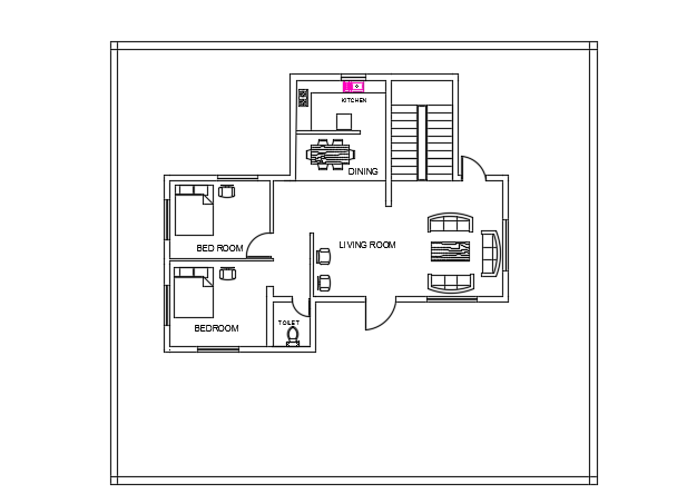
The furniture’s layout of the 13x10m architecture floor house plan 2d AutoCAD drawing is given in this file. This is two story residential building. On this ground floor plan, the living room, kitchen, dining area, master bedroom, kid’s bedroom, and common bathroom is available. For more details download the AutoCAD drawing model from our cadbull. Thank you for downloading the AutoCAD files from our cadbull website.
Uploaded by:
