The light system of the 14x14m architecture apartment basement floor plan cad drawing
Description
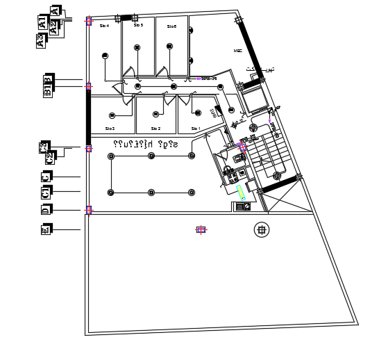
The light system of the 14x14m architecture apartment basement floor plan cad drawing is given in this file. This is B+ 2 apartment building. On this basement floor plan, the storerooms, kitchen, and common bathrooms are available. For more details download the AutoCAD drawing model from our cadbull. Thank you for downloading the AutoCAD files from our cadbull website.
Uploaded by:
