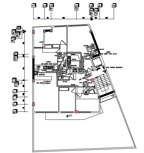
The firefighting, hot & cold water piping layout of the 14x14m architecture apartment first floor plan AutoCAD model
Description
The firefighting, hot & cold water piping layout of the 14x14m architecture apartment first floor plan AutoCAD model is given in this file. This is B+ 2 apartment building. On this first floor, two houses are available. On this house, the living room, kitchen, master bedroom, children’s room, and two common bathrooms are available. For more details download the AutoCAD drawing model from our cadbull. Thank you for downloading the AutoCAD files from our cadbull website.
File Type:
DWG
File Size:
1.2 MB
Category::
Dwg Cad Blocks
Sub Category::
Autocad Plumbing Fixture Blocks
type:
Gold
Uploaded by:

