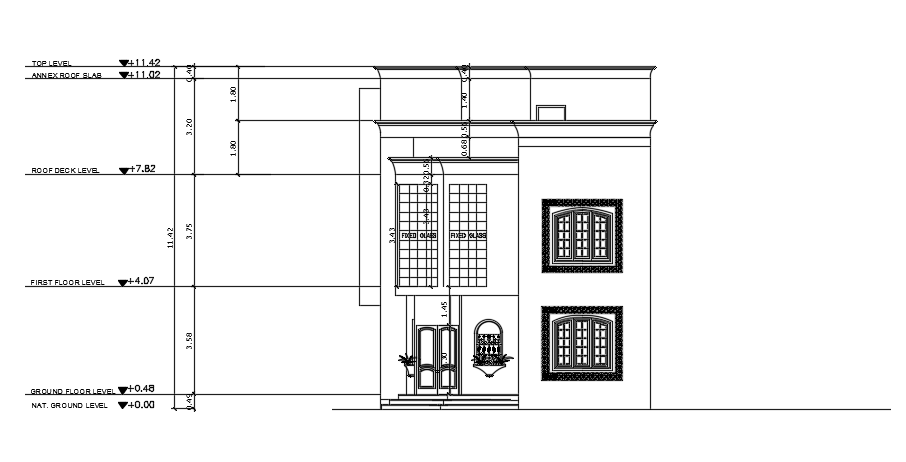
The front elevation view of the 9x23m architecture house building cad drawing
Description
The front elevation view of the 9x23m architecture house building cad drawing is provided in this file. This is three story villa building. On this ground floor plan, the car parking, lobby, men’s sitting area, kitchen, dining area, family hall, women’s sitting area, common bathroom, and garden is available. On this first floor, the family hall, two kid’s room, master bedroom with the attached toilet, guest room with the attached toilet, and common bathroom is available. On the annex floor, sitting area, game area, kid’s bedroom, guest bedroom, and common bathroom is available. For more details download the AutoCAD drawing model from our cadbull. Thank you for downloading the AutoCAD files from our cadbull website.
Uploaded by:

