10x15m double story villa plan cad model is given in this file
Description
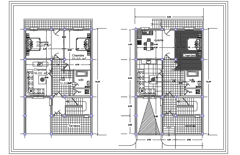
10x15m double story villa plan cad model is given in this file. This is G+ 1 villa building. On this ground floor, the living room, verandah, kitchen, master bedroom, and common bathroom is available. On this first floor, the living room, master bedroom, kid’s bedroom, and common bathroom is available. For more details download the AutoCAD drawing model from our cadbull. Thank you for downloading the AutoCAD files from our cadbull website.
Uploaded by:

