12x15m second floor house plan cad model is given in this file
Description
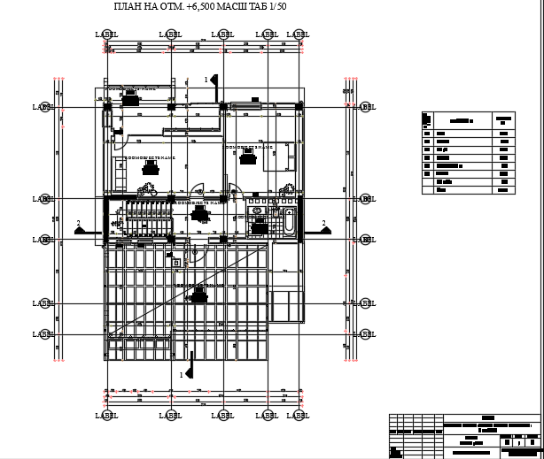
12x15m second floor house plan cad model is given in this file. This is G+ 3 house building. On this second floor plan, the living room, master bedroom, and common bathroom is available. For more details download the AutoCAD drawing model from our cadbull. Thank you for downloading the AutoCAD files from our cadbull website.
Uploaded by:

