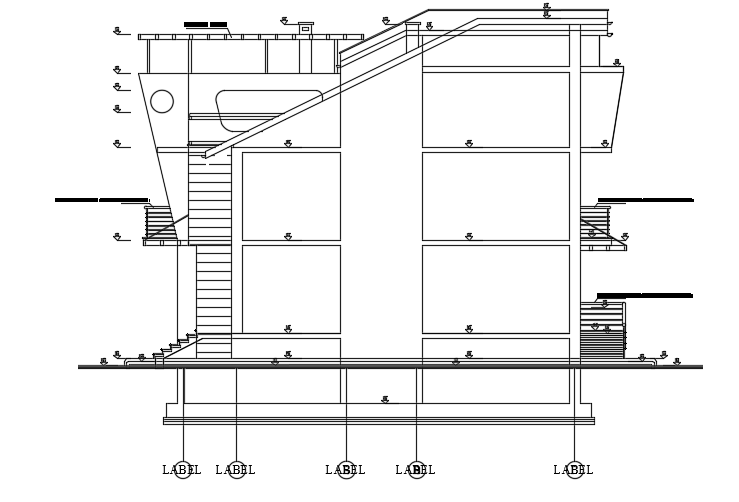
The back side section view of the 12x15m house building CAD model is given in this file
Description
The back side section view of the 12x15m house building CAD model is given in this file. This is G+ 3 house building. On this ground floor plan, the car parking, living room, kitchen, dining area, family area, and common bathroom is available. On this first floor plan, the living room, master bedroom with the attached toilet, kid’s bedroom, guest bedroom, and common bathroom is available. On this second floor plan, the living room, master bedroom, and common bathroom is available. For more details download the AutoCAD drawing model from our cadbull. Thank you for downloading the AutoCAD files from our cadbull website.
Uploaded by:

