20x13m Ground Floor Plan DWG for Modern Architecture House Layout
Description
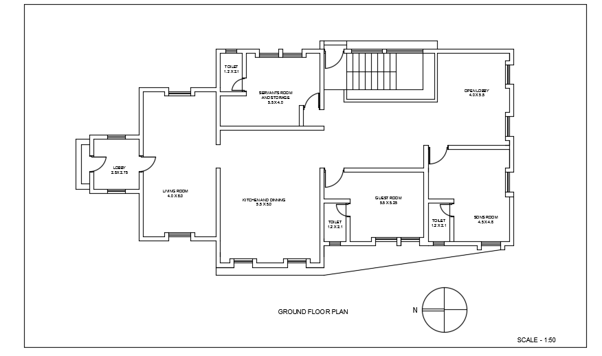
This 20x13m ground floor plan DWG provides a carefully designed architecture house layout that includes a living room, kitchen, dining area, guest room with attached toilet, servant room with storeroom and toilet, open lobby, plus a son’s bedroom with its own bath. The layout focuses on efficient use of space, privacy in sleeping zones, and seamless flow between public and utility areas. Ideal for modern family home designs, the plan delivers balanced comfort and functional living.
Uploaded by:

