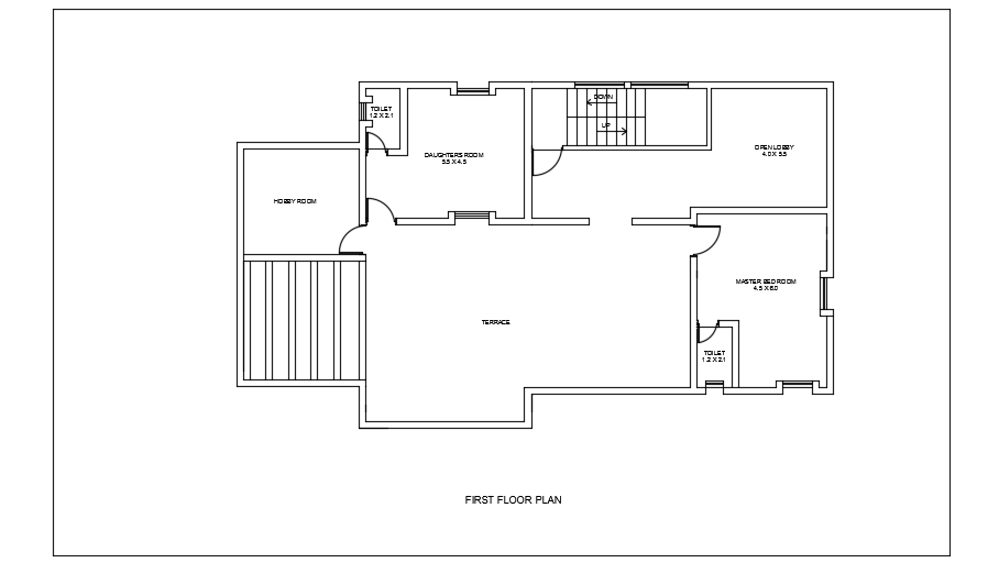
20x13m First Floor Plan AutoCAD Drawing Residential Layout Design
Description
This AutoCAD drawing illustrates the first floor plan of a 20x13m double-story house, highlighting a functional residential layout. The first floor includes a hobby room, master bedroom with attached toilet, open lobby, and daughter's room with attached toilet. Architects and builders can use this AutoCAD drawing as a reference for designing similar 20x13m duplex layouts.
Uploaded by:

