20x18m Arabian Villa First Floor CAD Furniture Layout Design
Description
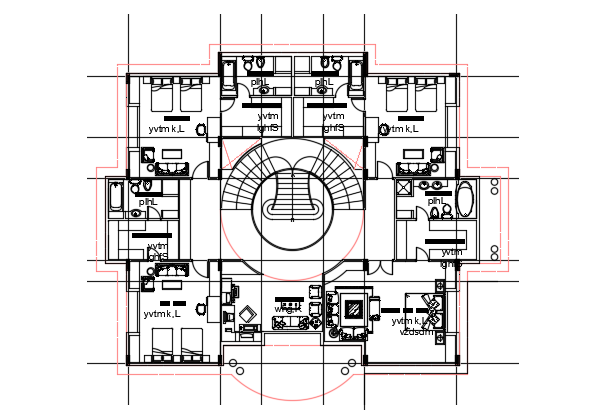
The furniture’s layout of the 20x18m amazing Arabian villa first floor cad model is given in this file. This is two story villa building. On this first floor, the master bedroom with the walk in closet & attached bathroom, kid’s bedroom with the attached toilet, & walk in closet, two guest rooms with the attached bathroom & walk in closet, and main salon is given. For more details download the AutoCAD drawing model from our cadbull. Thank you for downloading the AutoCAD files from our cadbull website.
Uploaded by:

