10x8m architecture house plan cad drawing is given in this file
Description
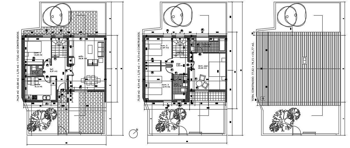
10x8m architecture house plan cad drawing is given in this file. This is G+ 1 house building. On this ground floor, the living room, kitchen, dining area, garden, master bedroom, and common bathroom is available. On this first floor plan, the master bedroom with the attached toilet, kid’s bedroom, guest bedroom, and common bathroom is available. On this first floor, the master bedroom with the attached toilet, kid’s bedroom, guest room, and common bathroom is available. For more details download the AutoCAD drawing model from our cadbull. Thank you for downloading the AutoCAD files from our cadbull website.
Uploaded by:

