38x13m architecture one story villa plan AutoCAD drawing is given in this file
Description
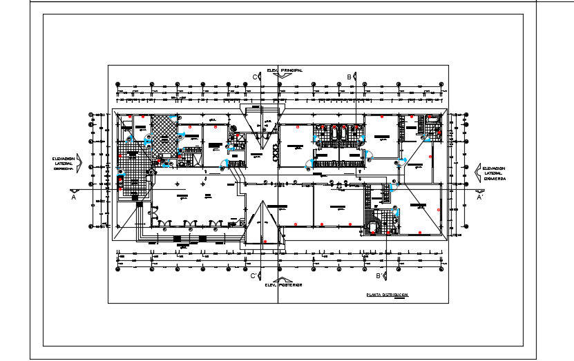
38x13m architecture one story villa plan AutoCAD drawing is given in this file. On this floor plan, the living room, kitchen, dining area, servant room with the attached bathroom, guest room with the attached toilet, family hall, patio service, breakfast corner, music room, master bedroom with the attached bathroom, two kid’s bedroom with the attached bathroom, guest room with the attached bathroom, and passage is available. For more details download the AutoCAD drawing model from our cadbull. Thank you for downloading the AutoCAD files from our cadbull website.
Uploaded by:

