A layout of the 16x16m architecture first floor house plan is given in this file
Description
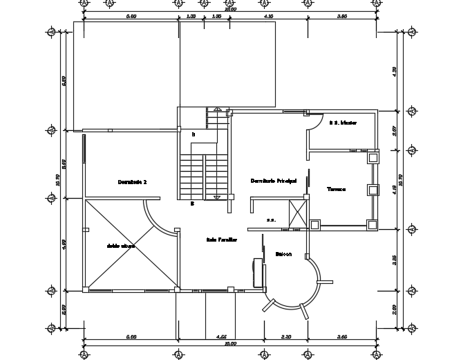
A layout of the 16x16m architecture first floor house plan is given in this file. This is two story villa building. On this first floor, the master bedroom with the attached toilet, kid’s bedroom, and common bathroom is available. For more details download the AutoCAD drawing model from our cadbull. Thank you for downloading the AutoCAD files from our cadbull website.
Uploaded by:

