16x16m architecture first floor house plan door location is given in this file
Description
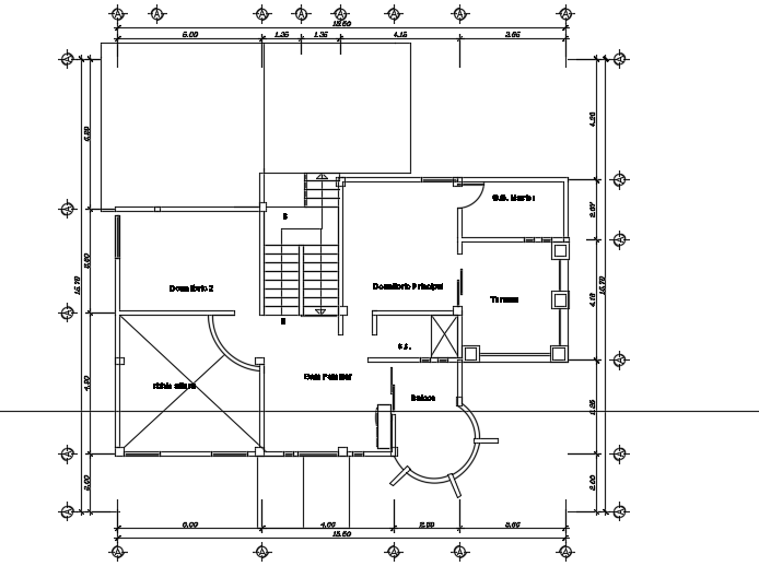
16x16m architecture first floor house plan door location is given in this file. This is two story villa building. On this first floor, the master bedroom with the attached toilet, kid’s bedroom, and common bathroom is available. For more details download the AutoCAD drawing model from our cadbull. Thank you for downloading the AutoCAD files from our cadbull website.
File Type:
DWG
File Size:
950 KB
Category::
Dwg Cad Blocks
Sub Category::
Windows And Doors Dwg Blocks
type:
Gold
Uploaded by:

