11x15m architecture house plan 2d AutoCAD DWG drawing is given in this file
Description
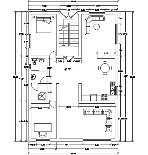
11x15m architecture house plan 2d AutoCAD DWG drawing is given in this file. This is two story residential building. On this ground floor, the living room, kitchen, dining room, family room, master bedroom and common bathroom is available. For more details download the AutoCAD drawing model from our cadbull. Thank you for downloading the AutoCAD files from our cadbull website.
Uploaded by:

