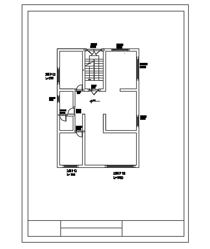
A door location and size detail of the 11x15m architecture house plan 2d AutoCAD DWG drawing
Description
A door location and size detail of the 11x15m architecture house plan 2d AutoCAD DWG drawing is given in this file. This is two story residential building. On this ground floor, the living room, kitchen, dining room, family room, master bedroom and common bathroom is available. On this first floor plan, the living room, kitchen, master bedroom, and common bathroom is available. For more details download the AutoCAD drawing model from our cadbull. Thank you for downloading the AutoCAD files from our cadbull website.
File Type:
DWG
File Size:
5 MB
Category::
Dwg Cad Blocks
Sub Category::
Windows And Doors Dwg Blocks
type:
Gold
Uploaded by:

